POM Betegelde Badkamers in een basis collectie of op maat
Prefab Badkamers
Bouw slim, kies voor luxe en efficiëntie. Ontdek de perfecte balans tussen snelheid en esthetiek met POM badkamers. Wij bieden hoogwaardige, op maat gemaakte sanitaire ruimtes die de traditionele kwaliteit van tegelwerk combineren met de innovatieve kracht van prefab bouw. Of het nu gaat om renovatie, transformatie of nieuwbouw, onze POM badkamers worden ontwikkeld met een duidelijke missie: hoogwaardige materialen gebruiken, gemakkelijke installatie, duurzaam en zonder verspilling.
Dankzij geavanceerde 3D-engineering en een gecontroleerd productieproces nemen wij de volledige verantwoordelijkheid voor uw project uit handen. Van compacte luxe tot ruime inloopdouches; wij leveren een kant-en-klare oplossing die naadloos aansluit op uw bouwplanning en ontwerpvisie.
Made by Portisa
Voordelen van onze POM soluties
Flexibel & Modulair
Onze badkamers zijn ontworpen als slimme bouwstenen voor moderne projecten. Dankzij het modulaire karakter zijn modellen onderling te schakelen alsof u met functionele blokken werkt.

- Slim Combineren: Koppel een toiletruimte aan een doucheruimte (zoals het Bonny & Clyde concept) om piekmomenten in gebruik te spreiden en privacy te verhogen.
- Ruimtebesparend: De compacte maar luxe indeling zorgt ervoor dat de badkamer in vrijwel elke plattegrond geïntegreerd kan worden, zonder concessies te doen aan comfort.
- Duurzame basis: Wij bouwen met oog voor de toekomst. Onze processen zijn gericht op het minimaliseren van afval en het maximaliseren van de levensduur van uw badkamer.
Ontwerpvrijheid

Uw visie is ons uitgangspunt. Omdat wij geloven dat een badkamer persoonlijk moet zijn, bieden wij volledige vrijheid in de afwerking.
- Betegeld naar wens: Kies uw eigen wand- en vloertegels, van mozaïek tot groot formaat, voor een uitstraling die perfect past bij uw project.
- Hoogwaardig sanitair: Onze units worden standaard uitgerust met topkwaliteit sanitair, zoals inbouwreservoirs en thermostaatkranen, voor een luxe gebruikerservaring.
- 3D Engineering: Elke badkamer wordt vooraf volledig in 3D uitgewerkt, zodat u precies weet hoe het eindresultaat eruitziet en technische verrassingen worden voorkomen.
POM Paneel collectie
Met POM-panelen kiest u voor dé partner in sanitaire oplossingen. Onze panelen onderscheiden zich door een unieke ronde hoekverbinding die 100% waterdichtheid garandeert. Ze worden door ons bekwame team snel, efficiënt en met een kitvrije wandaansluiting geplaatst om elke kans op lekkage uit te sluiten.
Wij bieden een zeer groot assortiment in: Kleuren, designs en materialen en in toepassingen voor zowel binnengebruik als gevelbekleding.

Goede Kwaliteit en snelheid
Met POM badkamers kiest u voor een zorgeloos bouwproces. Door de productie te verplaatsen naar de geconditioneerde fabriekshal, elimineren we de risico’s van traditionele bouw.

- Plug & Play: De units worden compleet afgemonteerd geleverd, klaar om direct aan te sluiten. Dit betekent extreem snelle plaatsing op de bouwplaats.
- Renovatie & Transformatie: Onze oplossingen zijn specifiek ontworpen voor intensief gebruik en zijn ideaal voor renovatieprojecten waar snelheid en minimale overlast cruciaal zijn.
- Geen faalkosten: Dankzij geconditioneerde productie elimineren we de risico’s van traditioneel werk en leveren we een gegarandeerde kwaliteit.
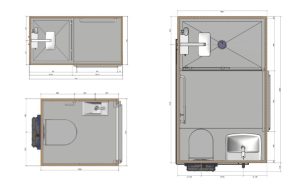
POM collectie

Binnen onze POM basic-collectie bieden wij een programma van vier badkamers. Deze ontwerpen zijn voortgekomen uit onze jarenlange ervaring in het leveren en plaatsen van prefab kant-en-klare badkamers. Deze badkamers voldoen allemaal aan het Bouwbesluit en zijn voorzien van accessoires van bekende merken. Uiteraard is een vrije keuze mogelijk qua inrichting.
- Collectie bestaat uit:
- Bonny: Single toilet unit;
- Clyde: Single douche;
- Bora Bora: Alles in-één-badkamer;
- MIVA: Volledig ingerichte MIVA-Badkamer.
Badkamer op maat
Daarnaast kunnen wij de tekeningen van de architect of de wensen van de eindklant nauwkeurig volgen. Wij hebben reeds vele projecten succesvol opgeleverd die precies aansloten op de aangeleverde tekeningen.
Naast badkamers op maat bieden wij sinds dit jaar ook ‘het hart van de woning’ aan. Binnen dit concept leveren wij een module waarin, naast de badkamer, ook de keuken, de technische installaties, de warmtepomp en alle overige voorzieningen prefab worden opgeleverd.










